VAN DUIJN Architecten
Voor uw droomhuis!

Woningbouw

Van Duijn Architecten ontwerpt innovatieve oplossingen voor de woningbouw. Complexe randvoorwaarden worden gezien als uitdagingen die eindresultaat kunnen verbeteren.

De aanpak van ons architectenbureau is er op gericht uw ideeën en wensen te vertalen in slimme, doordachte en betaalbare bouwplannen.

Juist de details ligt een op maat gesneden ontwerp. Want veel belangrijker dan de vanzelfsprekende functionele gebruikseisen zijn de persoonlijke verlanglijstjes, voorkeuren en dromen.

Onze eigen kracht vullen we waar nodig aan met de inbreng van specialisten. In de ontwerpen die op dit moment gestalte krijgen vertaalt onze energieke aanpak zich in ruimtelijke kwaliteit, doelmatige plattegronden en een betrouwbaar resultaat.

Na het voorlopig ontwerp is het zeer goed mogelijk om een kostenraming te maken, eventueel al door een aannemer. Op die manier is al heel vroeg in het ontwerpstadium bekend wat de woning gaat kosten en is dus de onzekerheid daarover verdwenen.

Hieronder staan enkele van de door ons vervaardigde woningontwerpen beschreven.

 

  

Uitbreiding woonhuis Beverwijk

De bewoners van deze jaren '30 woning in beverwijk wilden meer woonruimte op hun verdiepingsvloeren.

Door in het ontwerp van de uitbreiding gebruik te maken van het reeds balkon op de eerste verdieping dat reeds bestond, en deze bij de woning te trekken waren er geen werkzaamheden op de beganegrond benodigd.

Het balkon komt terug op de zolder verdieping waar de dakappel vervangen wordt door een nieuw exemplaar met openslaande deuren naar een balkon. Bovendien worden op de zolder verdieping twee nieuwe dakramen en een extra badkamer geplaatst.

Op de eerste verdieping worden de slaapkamer en de bestaande badkamer vergroot en opnieuw ingedeeld.

Verbouw

Vooraanzicht Woonhuis

 

                                Oude situatie                                                                               Nieuwe Situatie

  

 Water Villa, Haarlem

Met het ontwerp van deze woonboot is rekening gehouden met bewoning door 3 generaties. Een gezin met 2 kinderen heeft meer dan voldoende leefruimte in de hoofdmassa van de boot, waarbij de grootouders in het lagere gedeelte kunnen verblijven.  

 

 

 Uitbreiding Villa, Griekenland

In deze griekse villa ligt de woonkamer op de verdiepingsvloer. Hiervoor ligt een relatief klein dakterras. Wij hebben een ontwerp gemaakt waarbij het hoofdgebouw via 3 terrassen ontsloten wordt op de tuin. 

De terrassen van 5 bij 5 meter zijn vertrapt geplaatst zodat er een natuurlijke flow van de woonkamer naar de tuin ontstaat. Door deze beweging wordt de gelegenheid geboden optimaal van het uitzicht te genieten; de villa ligt namelijk op een heuvel, uitkijkend over de zee.

Één van de terrasen is eigenlijk een aangebouwde garage, waar de andere een overkapping heeft. Waar een royaal zitgedeelte is ontstaan. 

 

 

  

Schetsontwerp Woontoren, Rotterdam

Voor deze woontoren in Rotterdam zijn verschillende ontwerpen gemaakt.

 

  

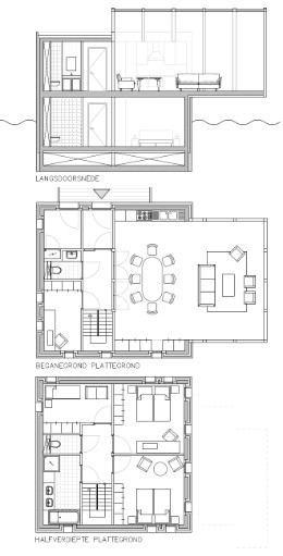
 Water Villa, Rotterdam

Deze woonboot kenmerkt zich door het over het water hangende woongedeelte en het contrast tussen transparant en niet transparante gevels.

Het woongedeelte vind volledig plaats op de bovenste verdieping en opent zich naar de omgeving. De slaapvertrekken op de onderliggende verdieping hebben echter een veel beslotener uitstraling. 

 

  

 Vakantievilla, schetsontwerp 1

Voor een projectontwikkelaar hebben wij verschillende varianten uitgewerkt van een vakantievilla.

 1) Een kostenefficente oplossing die een groot publiek aantrekt en zich kenmerkt door een eenvoudige opzet.

 2) Een Speelsere variant waarbij veel meer gespeelt wordt met de omgeving, door in te spelen op de hoogte verschillen van de kavels.

3)Een kostbare, exclusieve villa, met een woonkamer met 270 graden uitzicht, royale dakterrassen en een overdekte carport.

Ondanks een tevreden klant is het project door de economische realiteit van de mediterrane landen stop gezet.

 

  

 Vakantievilla, schetsontwerp 2

   

 

 

 

  

 Vakantievilla, schetsontwerp 3

 

 

 

  

Uitbreiding dakopbouw, Amersfoort

Dit project ging over het uitbreiden van een dakopbouw. Er zijn twee varianten gemaakt en uitgewerkt: een uitbreiding van 16 m2 en 27 m2. Deze zijn beide meegenomen in een offerte traject bij aannemers, om een definitieve afweging te maken welke optie de voorkeur kreeg.

De eerste variant is een uitbreiding aan één zijde van de reeds aanwezige opbouw. Er wordt een extra kamer toegevoegd aan de verdieping en de bergingsruimte wordt aanzienlijk vergroot. De gangzone wordt middels een schuine oplossing zo klein mogelijk gehouden, zodat zoveel mogelijk nuttige ruimte over blijft.

De tweede variant breid de bestaande dakopbouw aan beide zijden uit. Er worden twee ruime kamers gemaakt. Waarvan één de masterbadkamer met grote kastenwand, en-suite badkamer en aangrenzend het verschoven balkon.

 

 

Verschillende Varianten
 

 

 Gevelwijziging

 

Van Duijn Architecten            Juventastraat 8            1363 ZR Almere           +31 (0)6 44 55 24 16           info@vanduijnarchitecten.nl